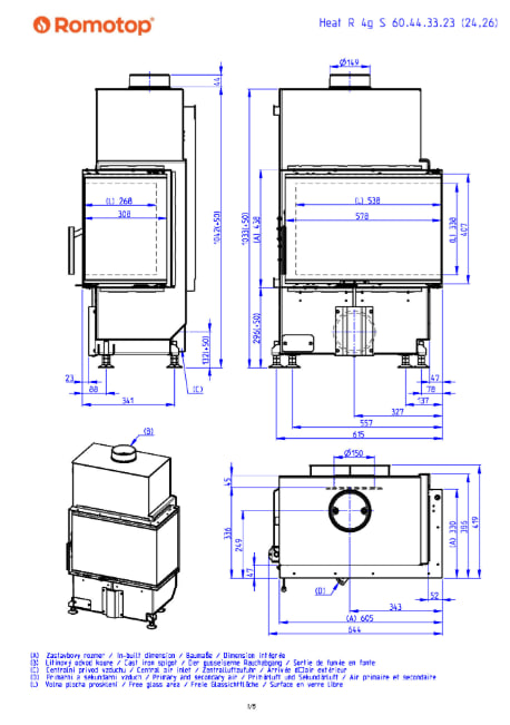
Вузька кутова топка для каміна HEAT R 4g S 60.44.33.26 з темним (чорним) футеруванням камери згоряння

 

Кутові камінні топки серії HEAT з’явились у асортименті компанії ROMOTOP наприкінці 2015-го року і одразу ж привернули увагу європейських покупців. Український ринок теж позитивно відреагував на появу нової лінійки і купити кутову камінну топку серії HEAT в мережі офіційних дилерів ROMOTOP в Україні можна вже з другого кварталу 2016-го року.

Сучасний дизайн кутових камінів і різноманітність форм та форматів кутових камінних топок, які відповідають трендам у дизайні інтер’єрів сприяли швидкій популяризації нової лінійки в Україні. Сталеві кутові топки для камінів серії HEAT це не лише про тренд у дизайні камінів, а у першу чергу – це якісний та високоефективний продукт, який повністю задовольняє потребу опалення каміном, який працює на дровах. Хоча культура користування каміном в Україні ще продовжує формуватися, але з кожним роком дедалі більше споживачів обирають якісні камінні топки віддаючи перевагу камінам серії HEAT.

За роки присутності на ринку України кутові каміни серії HEAT стали улюбленцями наших покупців, адже камінні топки цієї лінійки коштують відносно недорого, мають високу ефективність і за тривалий час експлуатації вже практично підтвердили свою надійність. З кожним роком кутові сталеві камінні топки HEAT зігрівають домівки та створюють затишок для все більшої кількості наших співвітчизників. Приєднуйтесь і Ви до великої родини задоволених користувачів якісних камінів і печей від чеського бренду ROMOTOP.

Відгуки

Відгуків поки що немає.

Залишити відгук для “HEAT R 4g S 60.44.33.26 – вузька кутова камінна топка (темна камера)”

Your Email адреса will not be published. Required fields are marked

CallClose